Homenaje a Hiroshi Hara en Uruguay

SEMINARIO 6: 2003

EL CUENTO DE HADAS DE LA CASA EXPERIMENTAL

TALLER HIROSHI HARA

Miguel Azadian
Alejandro Sande
Luis Zino

Sebastián Alonso
Zelmar Arteta
Viviana Barneche
Santiago Bartesaghi
Sabrina Borges
Ana Busso
Gerardo Cadenazzi
Magdalena Camacho
Mercedes Chirico
Gabriela De Bellis
Claudia de Oliveira
Laura Díaz
Mártires Etchechury
Gabriel Etchepare
Diego Ferrando
José Giraldez
Eduardo Goichea
Patricia Goldaracena
Silvia González
Alejandra Ibarlucea
Ayse Keteli
César Lorenzo
Leticia Martínez
Ana Melazzi
Ana Mendoza
Ruth Milstein
Ethel Mir
Nicolás Moreira
Leonel Nairac
Natalia Olivera
Alfredo Pereda
Ana Inés Pertzel
Alejandra Poey
Clelia Radesca
Felipe Ridao
Laura Reyes
Álvaro Rivas
Patricia Roland
Agustín Ros
Ariel Salchi
Gabriela Salvatella
Alma Varela

Cuando recibí el tema de este Seminario – “Vaciamientos / Extensiones” – sentí que nuestra Casa Experimental podría tener sentido o utilidad en él.

Porque hemos estado pensando que la Casa Experimental debería construirse en algún lugar del “urban redu”.

Se construirán tres pequeñas torres en Montevideo, que serán como una pequeña exposición.

En la zona designada, que es Colón – La Paz, hay muchos fragmentos de “urban redu”.
El “urban redu” es un conjunto de pequeños fragmentos de tierra que suelen aparecer en el proceso de extensión o desarrollo de la ciudad.

En esos fragmentos de tierra, las personas pobres construyen casas temporales y llevan una vida muy dura. Nuestra Casa Experimental es una casa para estas personas pobres.

Pero espero que nuestro ensayo tenga otro significado.
Estamos pensando que podría surgir un ejemplo de Ciudad Discreta si las personas pobres construyen sus casas de forma independiente, siguiendo algunos conceptos básicos.
Entonces, mientras tanto, intentaré explicar el concepto de Discrete.

Hoy en día, varias organizaciones públicas o gubernamentales, como el gobierno nacional o el gobierno de la ciudad, enfrentan situaciones económicas difíciles.
Si el gobierno invierte en infraestructura pública, entonces la deuda aumenta de manera evidente. Y casi todos los gobiernos del mundo están al borde de la bancarrota en este momento.
Si pensamos en esta situación, no podemos esperar grandes inversiones por parte del gobierno o de las organizaciones públicas.

Por otro lado, las personas que no tienen un lugar donde vivir aumentan día a día.
Como saben, unas 40.000.000 de personas aparecen en nuestro mundo cada año.
Ellas deben llevar una vida flotante en la ciudad.
Así que el problema no es solo en los países latinoamericanos, sino también en todos los países del mundo.

Entonces, debemos esperar que las personas construyan todas sus viviendas de forma espontánea y en el estilo más simple. En este caso, no tenemos ningún plan maestro ni plan urbanístico.
Por eso, no podrán encontrar ningún plan en nuestra propuesta.

De todas formas, vamos a realizar una Casa Experimental (una muy pequeña).
Nunca supuse que las personas pobres construirían sus casas siguiendo nuestro diseño. Sin embargo, hay muchas posibilidades en este mundo.

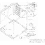
Así que, en este Seminario, presentamos un Cuento de Hadas de una Casa Experimental.

Como pueden ver, hay 4 paneles: gamma 1, gamma 2, gamma 3 y gamma 4. Representan 4 etapas de desarrollo.

En gamma 1, suponemos un futuro muy cercano. Aparecerán pequeñas torres en el urban redu.
En gamma 2, suponemos un futuro no tan lejano. Las granjas verticales simbolizan la evolución productiva y social.
En gamma 3, suponemos un futuro lejano. Un nuevo vacío topográfico se genera mediante membranas.
En gamma 4, suponemos un futuro muy distante. Ciudades flotantes como una nueva posible extensión de las actividades humanas.

Seleccionamos 2 o 3 frases en nuestro urban redu.
La primera frase: A lo largo del río
La segunda: Junto a las vías del tren
La tercera: A lo largo de la ruta
Cada una de ellas tiene su propia dirección hacia el futuro.

Ahora, la computadora explica cada proceso de dibujo.

Al recibir estos bocetos, puede que ustedes al principio tengan muchas preguntas y dudas. Pero por favor, recuerden que esto es una especie de Cuento de Hadas.

Pero me gustaría explicar por qué las casas dispersas se convierten en una ciudad tridimensional.

Las personas que no tienen tierras agrícolas quieren construir granjas verticales artificiales.
Al principio, las granjas verticales no son tan altas, pero la gente querrá hacerlas mucho más altas por su eficiencia.
Al mismo tiempo, querrán vivir en una posición más elevada utilizando la granja vertical.
Dicho de forma simple, la granja vertical funciona como una estructura de jardines colgantes de la Mid-Air City.

Vamos a explicar muchas cosas, pero no tenemos suficiente tiempo y me temo que no podremos explicarlas claramente. Pero intentaré explicar el concepto de Discrete.

Discrete es un concepto del espacio topológico en matemáticas.

Por favor, supongan un conjunto compuesto por tres personas.

Si las tres personas están fuertemente conectadas, solo puedo tomar nada o el conjunto completo como subconjuntos parciales.

Me gustaría explicar esto en papel.

 

Fotos: Medios Audiovisuales FADU

Translate »
Scroll to Top